[deutsch] [english]

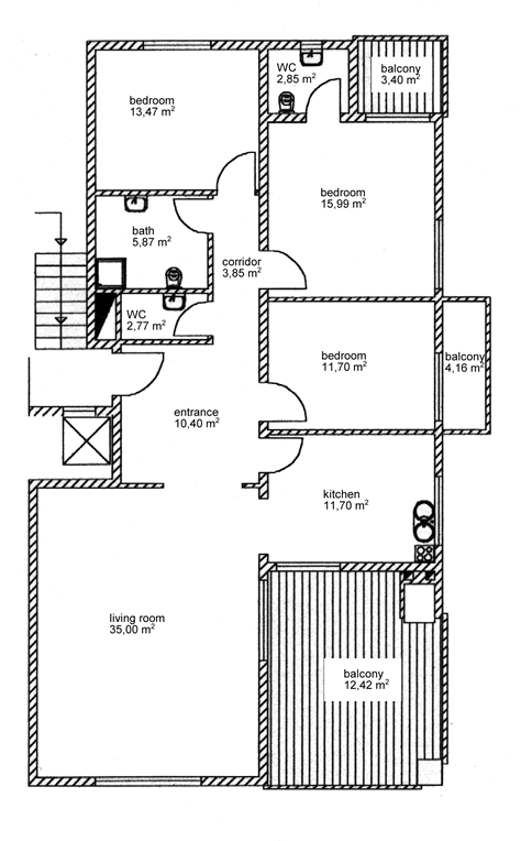
Apartment in modern vacation apartment housing estate
Flamingo 10 at the Turkish Riviera


[Home] [Photos] [Map] [Contact]      
         
  Click in one the rooms to get a photo of it.